Robertvanderzwan.nl gebruikt cookies om de website naar behoren te laten werken, om functies voor social media te bieden en om onze website te analyseren. Op onze website kun je ons Cookiebeleid en Privacybeleid vinden.

Van Boetzelaerlaan 284, Den Haag

Specifications

Under offer
Price
€ 945.000 k.k.
Decoration
Partly furnished
District
Geuzen- en Statenkwartier
Location
In residental area, Clear view
Zipcode
2581 BB Den Haag
Type
Terraced house
BuildYear
1916
Build type
Existing
Garden
Yes, Backyard, West, 580×725cm
Balcony
Yes
Parking
Paid parking, Public parking, Parking permit
Rooms
6
Bedrooms
4
Bathrooms
1
Living surface
142m²
Plot surface
126m²
Volume
530m³
Acceptance
In consultation

Printvriendelijke versie


  • Description

    EEN WANDELING LANGS DE HAVENS VAN SCHEVENINGEN MET EEN DIVERSITEIT AAN RESTAURANTS, FLANEREN OVER DE BOULEVARD VAN SCHEVENINGEN-BAD OF BOODSCHAPPEN DOEN AAN DE GEZELLIGE FREDERIK HENDRIKLAAN? HET IS ALLEMAAL OP LOOPAFSTAND!

    DIT ZEER GOED ONDERHOUDEN ZESKAMER HERENHUIS MET ACHTERTUIN EN ACHTERBALKON OP HET WESTEN IS GELEGEN OP EIGEN GROND AAN EEN LOMMERRIJKE LAAN IN BESCHERMD STADSGEZICHT STATENKWARTIER.

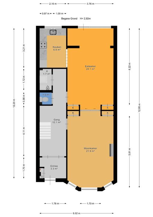
    Indeling:
    entree op straatniveau; vestibule ca. 1,70x1,80m met meterkast (elektra 11 groepen + 3x ALS + omvormer zonnepanelen) en dubbele deuren naar de hal met bergruimte onder de trapopgang, betegeld toilet met fontein en een geheel betegelde wasruimte ca. 0,95x1,70m met opstelling wasmachine, droger en cv-combiketel (Remeha 2021); voor- en achterkamer ensuite voorzien van schuifseparatie en 4 vaste kasten; voorkamer ca. 3,75x5,80m voorzien van een fraaie Eikenhouten visgraat parketvloer met bies doorlopend in de achterkamer, keuken en de hal, ornamenten plafond, marmeren schouw met open haard en erker kozijn aan de voorzijde; achterkamer ca. 3,75x6,20m voorzien van convectorput, deur naar de achtertuin en doorgang naar half open keuken ca. 2,15x3,20m voorzien van een moderne hoek opgestelde keukeninstallatie (2021) met gaskookplaat, afzuigkap, combioven, vaatwasmachine en koel-/vriescombinatie; achtertuin op het westen ca. 6,30 deels 5,30x 7,25m met houten berging.

    trapopgang naar de 1e verdieping: overloop, betegeld toilet en fontein; voorzijkamer/werkkamer ca. 2,15x3,25m met vaste kast; voor slaapkamer ca. 3,75x4,95m met marmeren schouw, airco-unit en erker; moderne betegelde badkamer (2024) ca. 1,55x3,75m voorzien van een ruime douche met hardglazen schuifdeur, dubbel wastafelmeubel, handdoekradiator, vloerverwarming en mechanische ventilatie; achter slaapkamer ca. 3,75x4,60m voorzien van een airco-unit en toegang tot achterbalkon over de gehele breedte ca. 1,60x6,10m; achter zijkamer ca. 2,15x3,20m.

    Bijzonderheden:
    * de woning is gelegen op eigen grond in Beschermd Stadsgezicht Statenkwartier;
    * de woning is voorzien van kunststof buitengevelkozijnen met HR++ glas (2022);
    * de keukeninstallatie is vernieuwd in september 2021;
    * de cv-ketel is vervangen in november 2021;
    * de dakbedekking is vervangen in 2023 en voorzien van dakisolatie PIR-L 80mm en 12 zonnepanelen;
    * de airco-units in de voor- en achter slaapkamer zijn in juni 2024 geplaatst;
    * de badkamer en het toilet zijn in december 2024 vernieuwd;
    * het woonoppervlak bedraagt ca. 142m2;
    * energielabel A;
    * de woning is gelegen nabij de duinen, de havens en het (surf)strand van Scheveningen, de winkels aan de gezellige Frederik Hendriklaan, diverse scholen, openbaar vervoer voorzieningen en ca. 15 fietsminuten naar de binnenstad van Den Haag;
    * vanwege het bouwjaar (omstreeks 1916) worden in de NVM koopovereenkomst de materialen- en de ouderdomsclausule opgenomen.

    DEZE ZEER GOED ONDERHOUDEN ZESKAMER TUSSEN HERENHUIS IS ZO TE BETREKKEN!

    Interesse in dit huis? Schakel direct uw eigen NVM-aankoopmakelaar in.
    Adressen van collega NVM-aankoopmakelaars in Haaglanden vindt u op Funda.

  • Location

    [ { "address": "Van Boetzelaerlaan 284", "zipCode": "2581 BB", "city": "Den Haag", "lat": 52.0950306, "lng": 4.2701807, "heading": 0, "pitch": 0 } ]
  • Reply

    The form has successfully been sent. We wil contact you as soon as possible.

    Something went wrong while sending the contact form. Check if you correctly filled in all required fields and try again.

    How much is ?  

Related houses

Sold
Zeezwaluwstraat 155
2583 RJ Den Haag
€ 770.000 k.k.
112m² Balcony 4 rooms
Sold with conditions
Raamweg 38
2596 HN Den Haag
€ 999.000 k.k.
272m² Garden 10 rooms